home

website 130x151
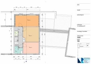
Uitbreiding woonhuis Wilnis

 

De 1e verdieping van een jaren 60 woning was te klein, 2 slaapkamers en een zeer kleine badkamer.

Op de bestaande achteruitbouw is de 1e verdieping uitgebreid en de dakopbouw is een dakkapel geworden.

Dit gaf de mogelijkheid voor een toilet en 3e slaapkamer.

 

3d view 1
3d view 4
1410_raadhuisstraat_v2 - sheet - 102 - 1e verdieping wt
1410_raadhuisstraat_v2 - sheet - 103 - 2e verdieping wt
1410_raadhuisstraat_v2 - sheet - 500 - details
achtergevel